top of page

胡志明市裡的城市綠洲|City Oasis Apartments@越南

June 07, 2021

|建築解方|

city-oasis001.jpg

 

西貢是越南的一個大城市,人口、交通和建築密度都很高,這導致了許多問題,如污染、交通堵塞、缺乏綠地等,目前也尚未解決,生活在一個全年平均氣溫高的擁擠城市,人們很難在附近找到一個地方來享受他們的短期假日遠離城市的炎熱和快節奏的生活,為了創造一個帶陰影的綠色空間,以幫助人們在不離開城市的情況下享受他們的住宿,設計團隊決定通過設計將人與自然聯繫起來。

city-oasis002.jpg

 

設計團隊前往現場進行觀察和評估時,空間和水平處理不當,悶熱的房間、沉重和不必要的陽台柱,而設計團隊沒有擴大建築面積,是試圖保持一個大的空隙在現場,尊重和保護大部分現有植物。

city-oasis003.jpg

 

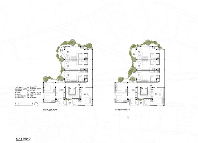
為此提供的解決方案是保留結構柱和梁,去除所有多餘的柱和梁,為日光和植物騰出空間,也為空間及走廊保持通風,最後提出大幕牆,以便在室內和戶外之間形成邊界,外面逐漸消失,為每個房間創造不同的花園,從入口處,設計了一條通往內部的短曲線路徑,使人們在進入大堂並進入自己的房間之前,在各種植物、水和光之間漫步。

city-oasis004.jpg

 

建築的外觀和立面都是由自然曲線創造的,周圍環繞著綠色樣貌,許多熱帶小樹根據位置而變化,每層樓的陽台系統是不一樣的,陽台地板之間的空隙優先種植高大的樹木為公寓提供清新的空氣和輕鬆的氛圍。設計團隊將每個房間都視為一個家,因此強烈推薦最小的內飾效果,為了激發人與自然之間的互動,使用帶來強烈情感的環保材料和傳統手工材料,天然再生木材、當地劈開的石材、輕質混凝土、水磨石、藤。

city-oasis005.jpg

 

這座建築代表了一片熱帶森林,每個人都可以在那裡體驗自己寧靜的花園,而不受市區的噪音或灰塵的干擾,建築內還有一個蜿蜒的小水池,在炎熱乾燥的夏季人們可以沉浸在水中享受寧靜的綠意,設計團隊希望這個案例能在一定程度上幫助被污染的城市沖走熱量並改善氣候變化,最終形成人與自然之間的牢固紐帶。

Image copyright:Archdaily

Photo:Hiroyuki Oki、K.A Studio
Translate and edit:島覔解方

 
  • Black Pinterest Icon
  • facebook

©2019 by 島覔解方. Proudly created with Wix.com

bottom of page