top of page

水平結構與創建的對話|MJE House@巴西

Januar 22, 2022

|建築解方|

mje-house001.jpg

 

為了尋找最有利的太陽方向,這座房子由兩個非正交量體組成,支撐在一個大高原上,這種定位旨在引導建築物朝向景觀中最有利的點,同時提供隱私,優先考慮與該地方建立構造關係,由大石牆創建的軸線貫穿客廳和餐廳環境,石材底座的堅固性和質地與其上體積的輕盈形成鮮明對比,屋簷的尖銳延伸和覆蓋板相對於垂直封閉計劃的分離更加突出。

mje-house002.jpg

 

事實上,對鉸接式Freijó木板進行的精細塑料處理非常引人注目,該設計基於覆蓋家庭整個私密區域的幾何構圖,這種密封解決方案允許對自然採光進行充分控制,此外還為立面的構成提供活力、多功能性和獨特性,木板的開發過程始於創建大量原型,並與業主積極討論,此外,重要的是要強調細木工和室內設計項目也是由Jacobsen Arquitetura進行的。

mje-house003.jpg

 

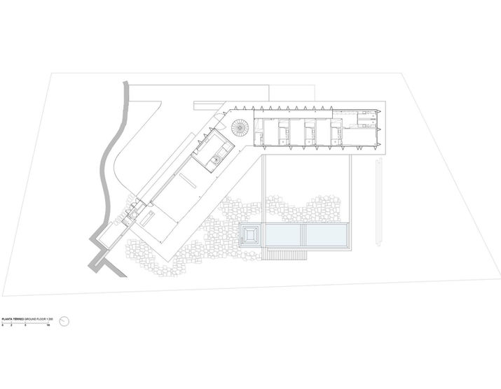
室內和戶外之間的連接成為設計理念解決的主要問題,圍繞一個平坦且連續的水平組織,遵循該地方的地形線,創建接收花園和游泳池,通過兩個水位連接,視覺連續性也是一個重要因素,特別是尋求生活區和高爾夫球場之間的整合,特別是住宅的社交區可以欣賞到花園的壯麗景色,在這個計劃中,計劃的戰略部分被分配:客房、車庫、健身房、音樂室、電影院、洗衣房和員工宿舍,這種規劃性的分佈試圖為住宅的主樓層提供更大的自由,這樣這些環境就不會直接與社交區域或家庭的私人區域聯繫起來。

mje-house004.jpg

 

大樓的主入口位於兩個街區之間的交匯點,在這個地方,有一個螺旋雕塑樓梯,可以從上層空間進入下層大廳,這個房間的一個有趣的元素是隱藏在面板中的入口門的植入,沒有建築體積金屬結構的分佈,從使用細長的柱子開始,為住宅的建築創造了令人驚豔的效果,亮點之一是這對夫婦的主人套房所在的體積創造了戲劇性的平衡,它在地形上前進,第二個流通大廳將所有房間與上層連接起來,地板材料的選擇標誌著社會和外部區域之間的區別,這些區域接受了花崗岩覆蓋,而臥室的木地板提供了一種更舒適、更親密的氛圍。

Image copyright:Archdaily

Photo:Leonardo Finotti、Jacobsen Arquitetura
Translate and edit:島覔解方

  • Black Pinterest Icon
  • facebook

©2019 by 島覔解方. Proudly created with Wix.com

bottom of page